George Davidson, Architect



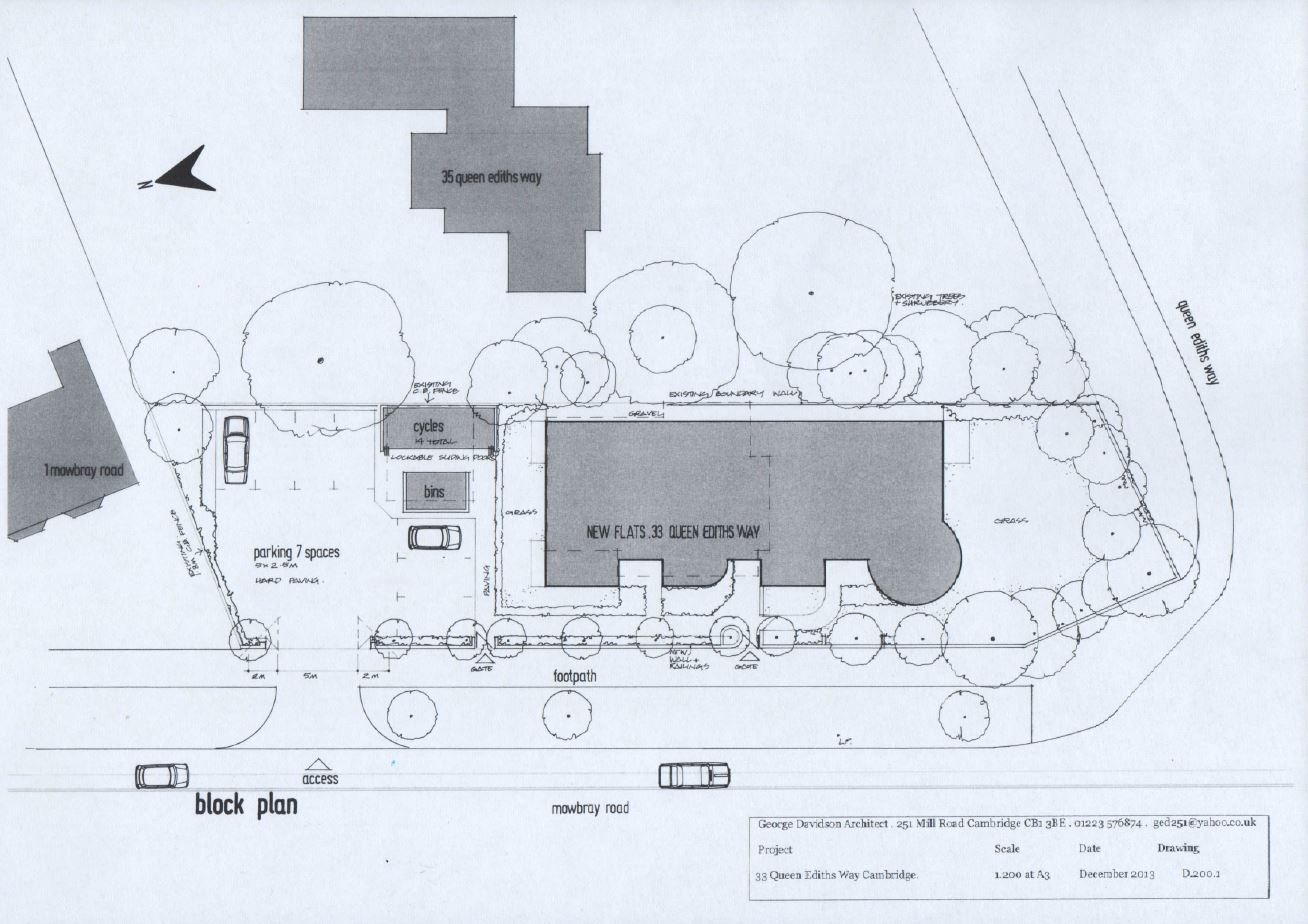
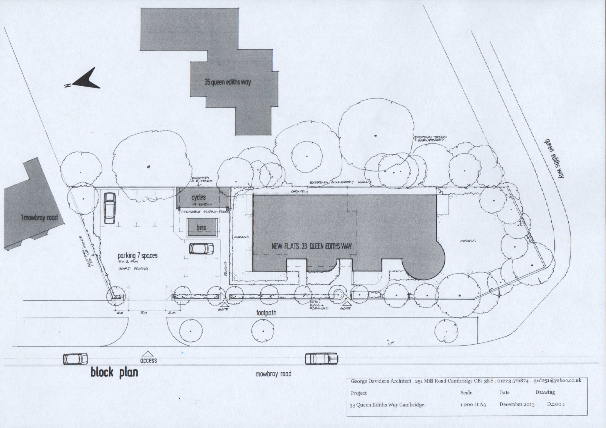
Projects - 33 Queen Edith's Way


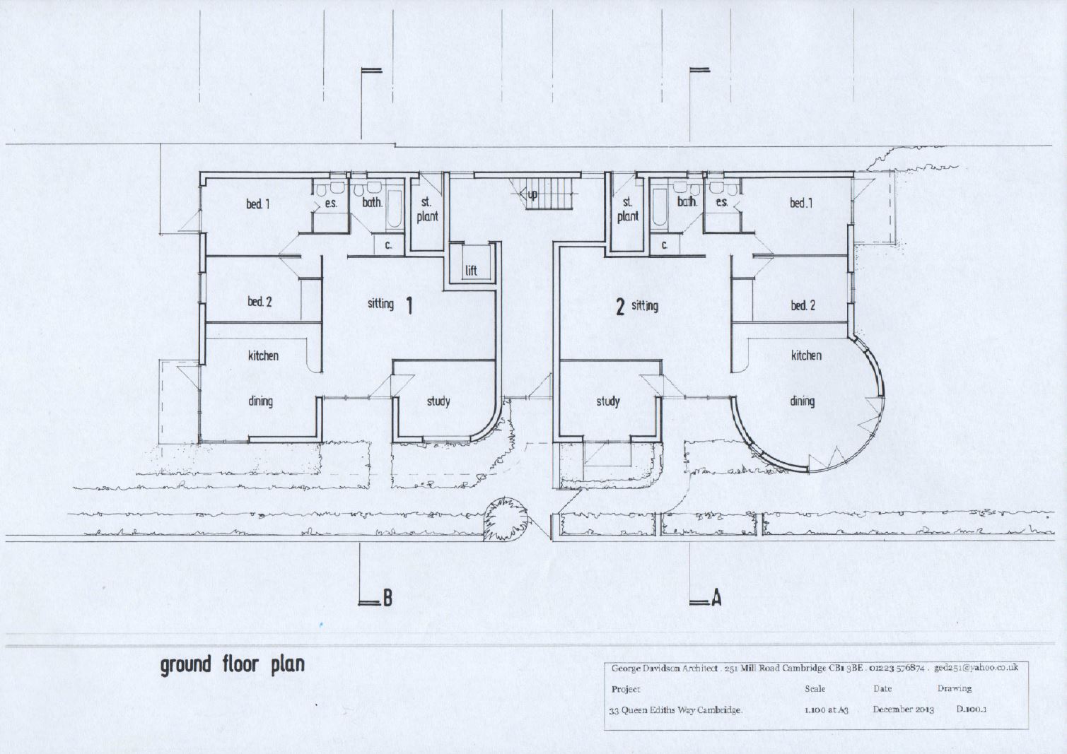
Mowbray Rd Elevation        Mowbray Road View from North West          Mowbray Road Block Plan          Mowbray Road Ground Floor plan 
                                                            
     33 QE Way Elevation                   33 QE Way View from North West             33 QE Way Block Plan                      33 QE Way Ground Floor plan